LIXILから高級窓のご紹介
2025.09.22

LIXILブランドNODEA
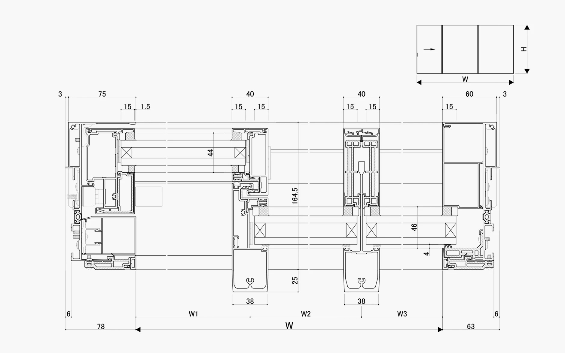
LIXILが展開するパノラマウィンドウコレクションNODEAの新仕様が7月から発売されました。何が変わったかというと、なんと見付(枠の幅と考えてください。)寸法が38mmと極細な設計。見付がほそければ細いほど外の景色を眺めるのに邪魔な枠が無くなるということなので、視界を気にされる、景色を楽しみたい方にはうれしい仕様なのです。
コストはまさかの…
極限まで細く設計されたサッシですので、安くはないです。なんと…1枚あたり250万円~ らしいです。軽自動車が一台買えちゃいますね。。。恐ろしや。

この見付で、引き違いができるというすごい設計。
更に38mmの見付の場合、約3mまで(正確に2,975mm)の高さを確保できるのだとか。これはちょっと使いたくなりますね。。。
興味のお気軽にお問い合わせください。既存の住宅をリフォームして付け直し、景色を楽しむ住宅にすることもできちゃうかもしれませんよ!
